This huge custom built home boasts spectacular views across the Delatite Valley to Mt Buller and the surrounding ranges, with their peaks capped in snow each winter. After a hard day on the slopes you will love to come home and relax in the heated swim spa. On a clear night you will see the lights twinkling as the groomers refresh the runs ready for you to carve up again tomorrow.
In the warmer months, the huge aquatic playground of Lake Eildon might just call your name, with the deep water boat ramps at Goughs Bay less than 10 minutes away. Closer to home, in fact right over the back fence, you can walk or ride for hours in the Delatite Bushland Reserve. You have direct access to the 100's of acres of bushland with great tracks and breathtaking views as you climb the Blue Range Escarpment. The Rifle Butts Mountain Bike Park has about 8 kilometres of trails maintained by the local cycling club.
Back at home there's just under 12 acres on title, fully fenced and pretty easy to maintain. This is one of the biggest blocks in this exclusive rural residential enclave.
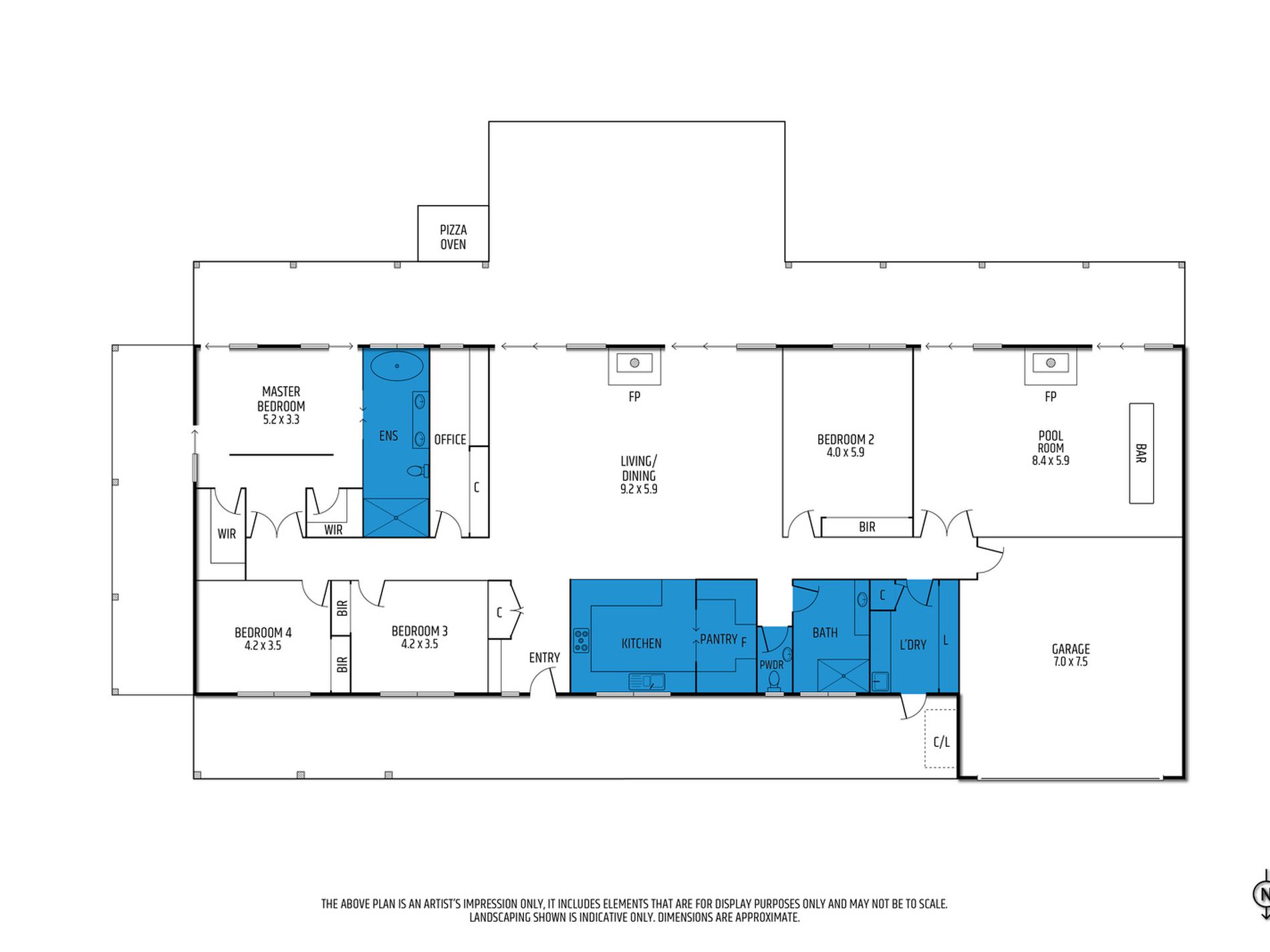
A lot of thought and expense has gone into creating an awesome country home. High quality but not pretentious, it has been designed and built to be enjoyed with family and friends. There's certainly room to entertain a crowd in a selection of great spaces. The main living area is enormous and opens onto a huge covered alfresco area complete with built in outdoor kitchen. And then there's the awesome pool room with a built in bar. When it's time to retire there are 4 generously proportioned bedrooms (plus a separate home office).
And of course any decent country property needs a big shed, and this one's an absolute beauty! It measures 24m x 9m with 5 remote entry high clearance roller doors, a great 'mancave' set up in one section and a 20kW solar system. There's also a fabulous enclosed veggie garden and fruit orchard with dripper irrigation. We can supply details of all the other inclusions. It's quite a long list!
Features
- Outdoor Entertainment Area
- Shed









































