As well as abundant birdlife and beautiful gardens, there’s also a charming 4 bedroom home, great sheds and stables, multiple water sources and pretty much everything your family needs to live a bountiful, sustainable life. With over 12 acres on title and another 7 or so either side of the creek on crown lease, there's plenty of pasture for horses or other livestock. The land is a great mix of lush creek flats and some slightly elevated, well drained paddocks with no steep hills and groves of trees for shade and shelter.
The location in the lush Glen Creek Valley is fabulous, with great riding into the nearby Strathbogie State Forest and all the aquatic delights of Lake Eildon within a few minutes drive. The booming regional town of Mansfield is only 15 minutes away en-route to Mt Buller and Mt Stirling.
As well as enjoying a decent annual rainfall and good rainwater storage, the property boasts 5 dams (including 1 spring-fed) and creek pumping rights, plus a bore that irrigates the orchard and the established vegetable gardens. The asparagus patch is AMAZING!!!!
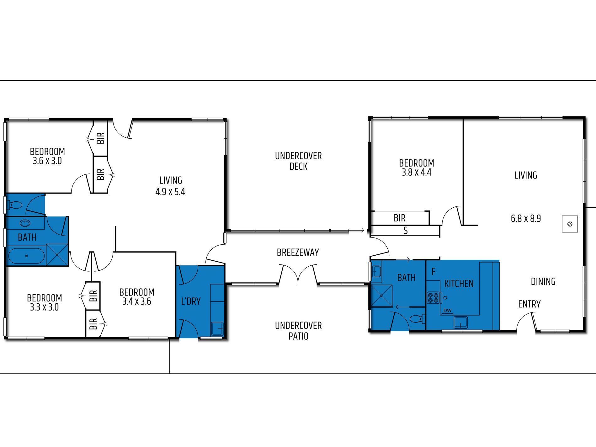
The house is deceptively spacious and very comfortable. It seems pretty damn solid, with a concrete slab foundation, low maintenance hardi-plank cladding on the outside and nice high ceilings inside with charming exposed beams and timber lining. The dual pavillion floorplan was well ahead of its time and is ideal for multi-generational living or even two families. The wide verandahs shade the house and provide a selection of great spots to relax and enjoy the beautiful views and birdsong.
There's so much on offer that we can't list it all here. Send an enquiry or call us for the long list of features and more photos.















































